
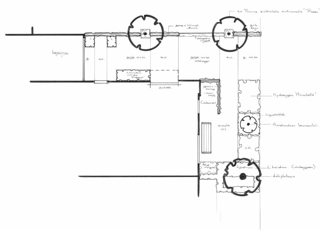
Ontwerp voortuin bij twee-onder-eenkapwoning
Geen reacties

Alles over Tuinen
- 't Struweel
- Beurzen en evenementen
- Bloembollen
- de Levende Tuin Academie
- Jaargetijden
- Kunst in de tuin
- Park en plantsoen
- Rozentuinen
- Stijltuinen
- Tuinboek
- Tuinen en Parken in Belgie
- Tuinen in de Verenigde Staten
- Tuinen in Engeland
- Tuinen in Italie
- Tuininfo
- Tuinmetamorfose
- Tuinontwerp voorbeelden
- Tuinplanten
- Tuinvideo's
- WORKSHOP Tuinontwerp
Recent over tuinen
Recente reacties
- Ron den Dikken op Kleine achtertuin vol romantiek
- Ron den Dikken op Kleine achtertuin vol romantiek
- Ron den Dikken op Kleine achtertuin vol romantiek
- jose op Kleine achtertuin vol romantiek
- Chantal Hoogervorst op Kleine achtertuin vol romantiek

