Tuinontwerp; Kleine stadstuin

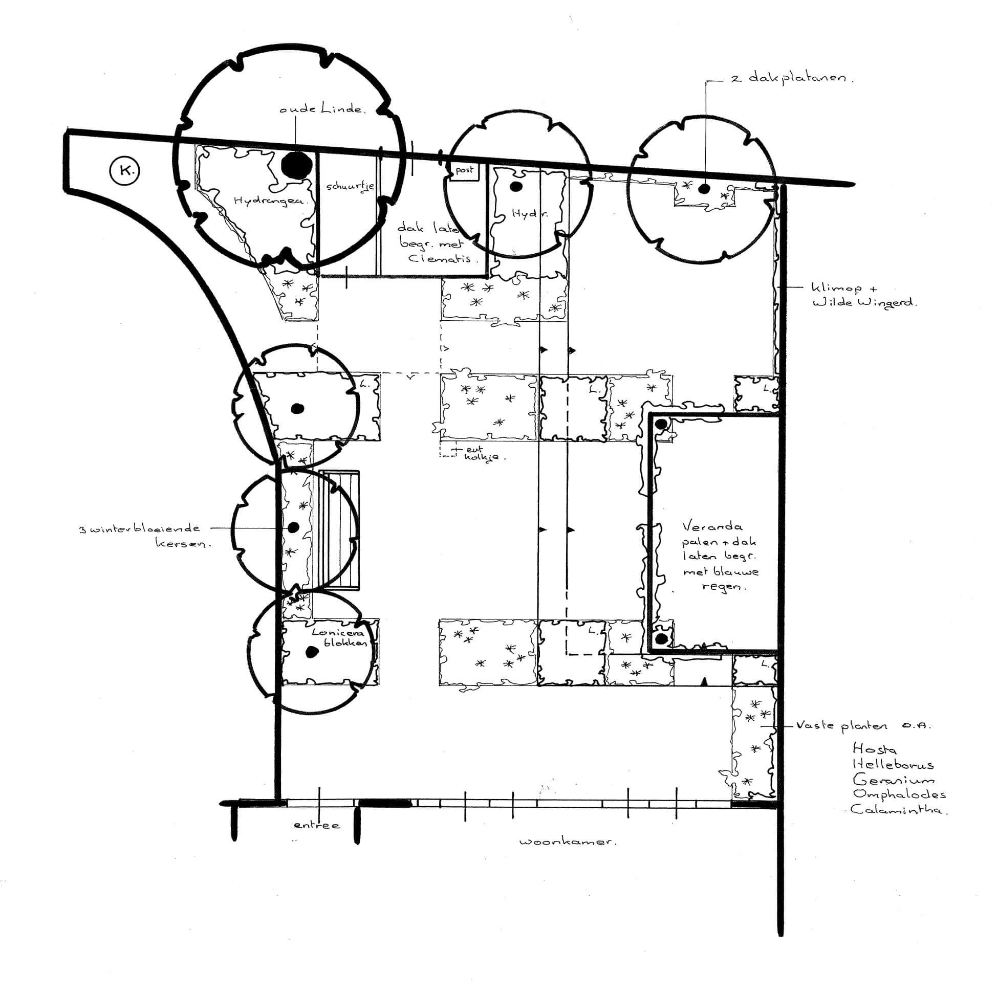
Ontwerp voor kleine stadstuin met overkapping
Ontwerp voor kleine stadstuin met overkapping

Laat een reactie achter

Het e-mailadres wordt niet gepubliceerd. Vereiste velden zijn gemarkeerd met *

Dit is een verplicht veld
Dit is een verplicht veld
Geef een geldig e-mailadres op.